宝塚市の一級建築士事務所
工藤建築環境設計室
初めての方へ
家づくりについて
家づくりについて
ご提案のこだわり
構造のこだわり
住環境のこだわり
工事のこだわり
CM分離発注方式
実例見学
設計実績
設計実績
住宅設計・監理
公共・民間施設
インタビュー
よくある質問
会社案内
会社案内
会社概要
スタッフ紹介
新着情報
ブログ
気密測定業務
Facebook
Instagram
お問い合せ・ご予約
実例見学
宝塚市の一級建築士事務所
工藤建築環境設計室
宝塚市の一級建築士事務所
工藤建築環境設計室
TOPページ
初めての方へ
家づくりについて
ーご提案のこだわり
ー構造のこだわり
ー住環境のこだわり
ー工事のこだわり
ーCM分離発注方式
ー実例見学
設計実績
ー住宅設計・監理
ー公共・民間施設
インタビュー
よくある質問
会社案内
ー会社概要
ースタッフ紹介
ー新着情報
ブログ
Facebook
Instagram
株式会社工藤建築環境設計室
〒665-0805 兵庫県宝塚市雲雀丘2丁目1-3 雲雀ヶ丘文化会館103号
電話番号:072-744-2921
定休日:土日祝日
営業時間:09:00~18:00
SNS:
Facebook
/
Instagram
お問い合せ・ご予約
実例見学
HOME
»
2017年5月
ブログ
BLOG
工事の進捗状況を始め、建築の知識や工藤建築環境設計室の日常などを発信しております。
2017/05/23 |
耐震・構造について
木造住宅耐震セミナーのご案内【宝塚市】
日時:5月27日(土) 時間:10:30~12:00 場所:宝塚市山本(あいあいパーク)阪急宝塚線山本駅徒歩5分、無料駐車場有り 熊本地震から、約1年が経ちます……
続きを読む→
2017/05/23 |
住宅設計のコツ
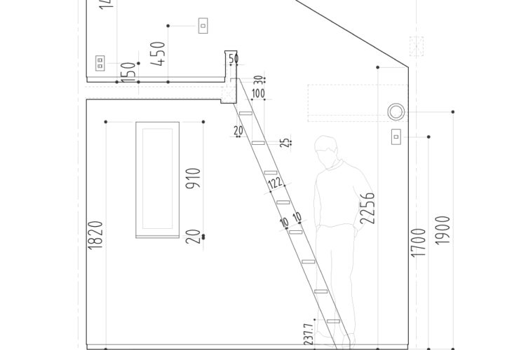
ハウスメーカーのCMと天井の高さについて
工藤住環境設計室の工藤です。 今回は天井の高さについてお話させて頂きます。 天井の高さは設計の中でも重要なポイントです。 また、その高さの設定は非常に難しく、悩……
続きを読む→
2017/05/21 |
ABARTH(アバルト)
日記
ABARTH 500C GRIGIO RECORD(アバルト500Cグリージョレコード)
工藤住環境設計室の工藤です。 今回は、私の愛車をご紹介致します! フォルクスワーゲンのビートルより、ビートル(甲虫)な感じのアバルト500cです。 ど……
続きを読む→
2017/05/19 |
箕面里山平屋の家
箕面里山平屋の家【防蟻工事、打合せ】
昨日、箕面森町にて工事中の現場で、施主さまと『現場見学 兼 打合せ』を行いました。 よく晴れており、暑いくらいでした。 一通り現場をご見学いただき、工事のご……
続きを読む→
2017/05/19 |
住宅設計のコツ
満願の里山住宅(宝塚市・川西市)
子供部屋の広さや大きさについて
工藤住環境設計室の工藤です。 今回は家造りの間取りにおいて、よくご質問を頂く子供部屋の広さや大きさについてお話させて頂きます。 工藤住環境設計室が間取りの打ち合……
続きを読む→
2017/05/19 |
日記
NEWインパクトドライバーGETの巻
工藤住環境設計室の工藤です! インパクトドライバーを購入しました。 以前使っていたものは、15年程使っていたのですが、バッテリーが駄目になってしまいました・・・……
続きを読む→
2017/05/16 |
お家のトラブル
素材
無垢の木に使う天然系ワックス(自然素材)の施工性・撥水・耐水・防水性についての実験
私共が設計させていただくお家は、水廻りにも木材(無垢材、集成材)を使用することが多いです(^_^) 無垢材は風合いも良く体にも優しいですが、水には弱いです(-_……
続きを読む→
2017/05/15 |
箕面里山平屋の家
箕面森町平屋の家【大工工事、気密施工】
本日も引き続き大工工事です。 外部の面材が施工されています。 釘のピッチや釘の長さ、釘のめり込みを確認しました。 釘のピッチは外通り@100mm以下なので問題な……
続きを読む→
2017/05/12 |
箕面里山平屋の家
箕面里山平屋の家【大工工事、気密施工】
10日(水) 現場監理と気密処理を行うため現場へ行きました。 現場は大工工事が順調に進んでいます。 様々な構造用金物が施工されました。 こちらは『ホールダウン……
続きを読む→
2017/05/08 |
箕面里山平屋の家
箕面里山平屋の家【大工工事-上棟、屋根工事】
5月1日(月)建築吉日 現在進行中の箕面森町平屋の家が上棟しました! 肝心の天気は・・・、雨が少し降ったり、晴れたり、曇ったりの繰り返しでした。 昼頃には……
続きを読む→
検索
検索
アーカイブ
<
2017
2020
2019
2018
2017
2016
2015
2014
2013
2012
▼
>
1月
2月
3月
4月
5月
6月
7月
8月
9月
10月
11月
12月
1月
2月
3月
4月
5月
6月
7月
8月
9月
10月
11月
12月
1月
2月
3月
4月
5月
6月
7月
8月
9月
10月
11月
12月
1月
2月
3月
4月
5月
6月
7月
8月
9月
10月
11月
12月
1月
2月
3月
4月
5月
6月
7月
8月
9月
10月
11月
12月
1月
2月
3月
4月
5月
6月
7月
8月
9月
10月
11月
12月
1月
2月
3月
4月
5月
6月
7月
8月
9月
10月
11月
12月
1月
2月
3月
4月
5月
6月
7月
8月
9月
10月
11月
12月
1月
2月
3月
4月
5月
6月
7月
8月
9月
10月
11月
12月
カテゴリー
ABARTH(アバルト)
CM分離発注方式(オープンシステム)
イベント情報
インタビュー
エコ住宅・住環境・温熱環境
お家のトラブル
その他
ブログ
猫に優しい住まい
箕面里山平屋の家
住宅設計のコツ
素材
宝塚市マンションリノベーション(リフォーム)計画
宝塚市末広町住宅改修計画
宝塚市調湿・気密共存住宅
宝塚市雲雀丘スカイハウス
家づくりお得情報
家造りのコストについて
川西市大和西住宅計画
川西市東畦野住宅改修計画
耐震・構造について
日記
高槻市日吉台住宅改修計画
満願の里山住宅(宝塚市・川西市)
照明
高気密・高断熱住宅
一級建築士が行う監理
新着情報
設計実績
公共・民間施設
住宅設計・監理