家事動線の考え方
工藤住環境設計室の工藤です。
新築住宅のプランを考える時、又は間取りを変更する中古住宅のリフォーム・リノベーションを行う時に重要なのが、家事動線です。

キッチンから洗濯機置場までの動線を短くしたプランを見る事が御座いますが、実際には本当に便利なのでしょうか?
現代の洗濯機はほとんどが全自動洗濯機だと思います。洗濯を行うにはボタン1つを押すと、洗濯開始!
炊事と洗濯を同時に行う事は多いとは思いますが、それぞれの場所を近づける事によって、家事が軽減されるとは考えにくいです。
では、家事動線は何を意識すれば良いのでしょうか?
私は洗濯機置場と洗濯が完了した後に洗濯物を干す、物干場との動線や位置関係が重要と考えています。
例えば1階にお風呂・洗面脱衣室があり1階に物干場が取れないプランで2階のバルコニーに洗濯物を干す場合、2階に洗濯機置場を設ける事が、家事軽減に繋がると考えています。
これは1階の脱衣所で脱衣し、洗濯物を2階の洗濯機まで運ぶ労力と、1階に洗濯機を配置し洗濯完了後、濡れた衣類を2階に運ぶ労力の比較です。
濡れて重くなった衣類を階段にて運ぶことはとても重労働です。また脱水後タイムラグを与えると、衣類にシワが出来易くなりますよね。

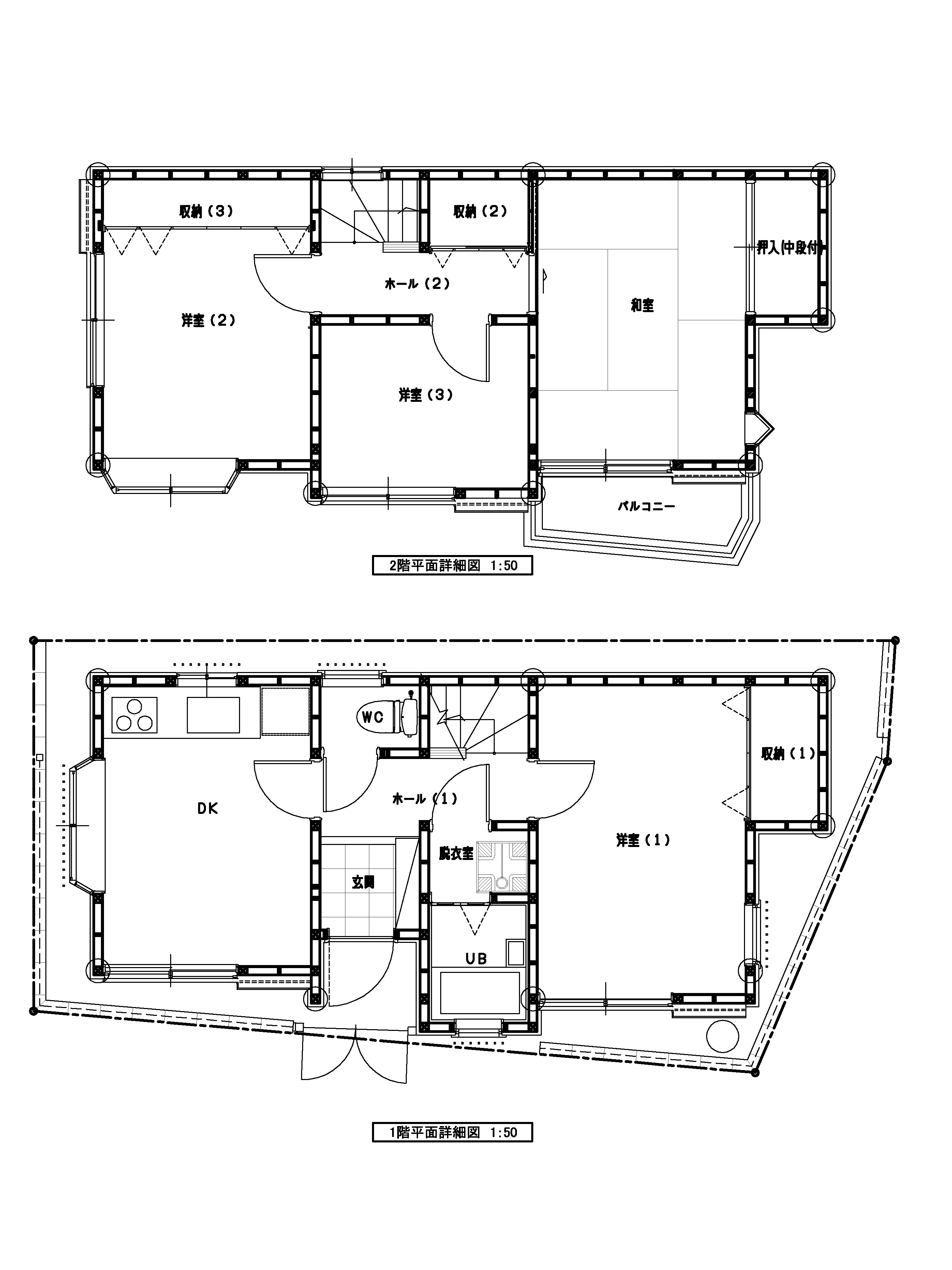
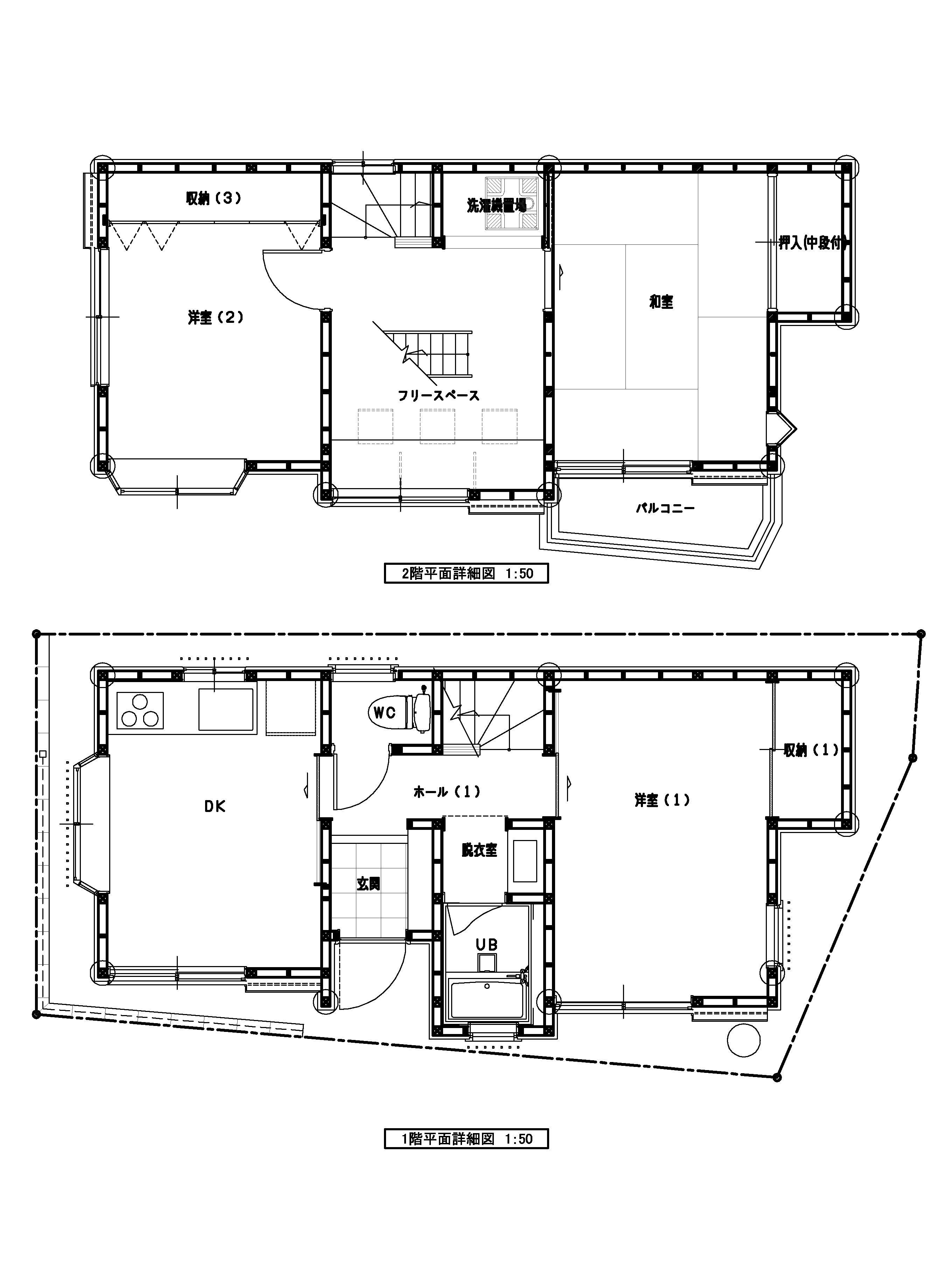
このプランは工藤住環境設計室が実際に西宮市にて設計・監理を行った木造住宅のリノベーションの図面です。
改修前の間取りは1階にお風呂・洗濯機置場が御座います。(1階に物干しスペースは御座いません)
実際には2階のバルコニーにて洗濯物を干していたと考えられます。

改修後は1階の洗濯機置場のあった場所に造作の洗面コーナー、2階に洗濯機置場を設けました。
この他には、物干し場と洗濯物をたたむ(アイロン掛けする)スペース、衣類を収めるスペースの関係性も使い易い家造りにとって大切な要素だと思います。